stan 23

Stan 23 / SPRAT 03 / TIP 5 / TROSOBAN

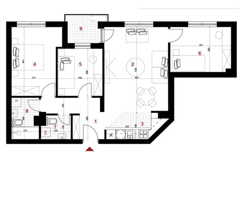
Stan 23 je na trećem spratu i orjentisan je prema dvorištu. Ukupna površina ovog stana je 75.13m². U stanu ima devet prostorija: ulazna partija, dnevni boravak, kupatilo, tri spavaće sobe, kuhinja, hodnik i terasa. Stan je orijentisan prema zadnjem delu zgrade (dvorištu).

stan 23 3d tlocrt

STRUKTURA: TROSOBAN STAN
ORIJENTACIJA STANA: DVORIŠTE
TIPSKI STAN 5 (STANOVI: S05, S14, S23, S32, S41)


površine prostorija

  1. ULAZNA PARTIJA 6.88m2
  2. DNEVNI BORAVAK 21.75m2
  3. KUHINJA 4.66m2
  4. SPAVAĆA SOBA 12.32m2
  5. SPAVAĆA SOBA 8.28m2
  6. SPAVAĆA SOBA 10.68m2
  7. TOALET 2.60m2
  8. KUPATILO 4.27m2
  9. TERASA 3.69m2

UKUPNO: 75.13m2


stan 23 3d tlocrt
stan 23 dispozicija stana
viewpoint home