stan 59

Stan 59 / SPRAT 07 - POVUČENI SPRAT / TROSOBAN

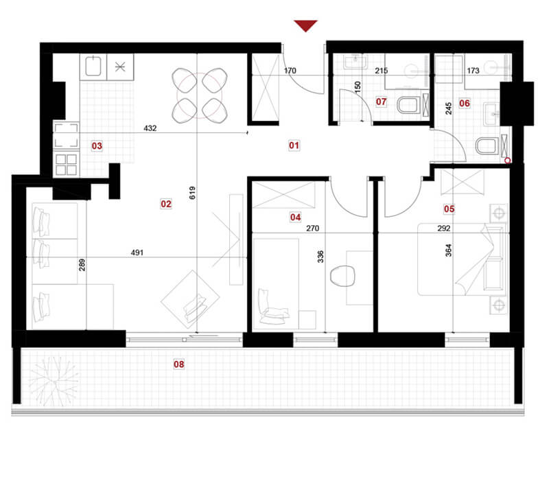
Stan 59 je na sedmom (povučenom) spratu i orjentisan je prema ulici. Ukupna površina ovog stana je 76.38m². U stanu ima osam prostorija: ulazna partija, dnevni boravak, dve spavaće sobe, kupatilo, kuhinja, toalet i terasa. Stan je orijentisan prema prednjem delu zgrade (ulici).

stan 59 3d tlocrt

STRUKTURA: TROSOBAN STAN
ORIJENTACIJA STANA: ULICA


površine prostorija

  1. ULAZNA PARTIJA 7.23m2
  2. DNEVNI BORAVAK 23.17m2
  3. KUHINJA 4.52m2
  4. SPAVAĆA SOBA 9.07m2
  5. SPAVAĆA SOBA 10.30m2
  6. KUPATILO 3.88m2
  7. TOALET 3.22m2
  8. TERASA 15.00m2

UKUPNO: 76.38m2


stan 59 3d tlocrt
stan 59 dispozicija stana
viewpoint home